室内リフォーム済み
- 詳細
情報 - 平均
相場 - 物件
口コミ - 街の
魅力 - 地域
情報
| 物件名 | 代々木フラワーマンション | ||
|---|---|---|---|
| 所在地 | 東京都渋谷区西原1丁目7番地2号 | ||
| 価格 | 東京都4,480万円 (税込) | ||
| 管理費 | 6,880円 | ||
| 修繕積立金 | 10,000円 | ||
| その他費用 | |||
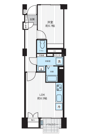
| 間取り | 1LDK | ||
| 所在階数 | 3階 | ||
| 築年月 | 1969年1月 | ||
| 専有面積 | 38.59m2 | バルコニー面積 | 2.68m2 |
| バルコニー面積 | 2.68m2 | ||
| 向き | 南 | 状況 | 空室 |
| 状況 | 空室 | ||
| 土地権利 | 所有権 | 借地料 | - |
| 借地料 | - | ||
| 引き渡し時期 | 相談 | 取引様態 | 仲介 |
| 取引様態 | 仲介 | ||
建物平均相場
-円 / ㎡
本建物の1㎡当たりの平均価格です。
概算金額計算
円
当サイトに掲載した直近2年間の売出し・成約の金額を元に算出しています。
事例がない場合は、表示されません。
成約済み事例
| 2024.05 | - | 5階 | 2K | - |
もっと見る
売出履歴
| 2026.01 | - | 4階 | 1SLDK | - |
| 2026.01 | - | 4階 | 1SLDK | - |
| 2025.11 | - | 4階 | 1SLDK | - |
| 2025.10 | - | 3階 | 1LDK | - |
| 2025.10 | - | 3階 | 1LDK | - |
| 2025.10 | - | 3階 | 1LDK | - |
| 2025.10 | - | 3階 | 1LDK | - |
| 2025.01 | - | 3階 | 1SLDK | - |
| 2025.01 | - | 3階 | 1SLDK | - |
| 2025.01 | - | 3階 | 1SLDK | - |
| 2025.01 | - | 3階 | 1SLDK | - |
もっと見る
本建物の口コミを募集しています。
口コミ投稿フォーム
×
もっと見る
物件のこだわり/設備・条件
- ペット可(犬・猫)
- オートロック
- 宅配ボックス
- 敷地内駐車場
- エレベーター
- 新耐震基準
- 角部屋
- 最上階
- 即入居
- 専用庭付
- 2階以上
- リノベ済み
支払いシミュレーション
価格 4,480万円
| 諸費用概算 | 万円 | 総額 | 万円 |
|---|---|---|---|
| 借入総額 | 万円 | 借入期間 | 年 |
| 頭金 | 万円 | 金利 | % |
| ボーナス払い | 万円(年2回払い、1回あたりの金額) | ||
月々のお支払 --- 円
※マンション本体のみのお支払額です。
リフォーム・リノベーション費用も含んだお支払いを知りたい方
RE+プラン
RE+とは、間取りそのままで、キッチン、お風呂など水回りすべてを新品にするリノベーションです。
もちろん、クロス、建具、床材も新品になり、色々なセレクトができます。
RE+αプラン
RE+αとは、スケルトンにしてから工事するので、キッチンやお風呂などの水回りの配管・給湯器も新品に取り換え。3LDKから2LDKなどの間取り変更も地涌自在にできて、全て新品にするリノベーションです。
RE+αプランのシミュレーションを見るご購入をお考えの方へ
このマンションの他の部屋が売り出されたらメールでお知らせします。
売却をお考えの方へ
無料売却査定代々木フラワーマンション/3階
4,480万円 (税込)
- 1LDK
- 38.59m2
- 3階
- 1969年1月
お問合わせ先情報
ジャパン・ビルド株式会社- 10:00~18:00
- 毎週水曜日
おすすめ物件情報
代々木フラワーマンション/4階
6,099万円 (税込)
- 1SLDK
- 45.67㎡
- 4階
- 1969年1月
物件所在地
※建物周辺情報は実際とは若干異なる場合がございますのであらかじめご了承ください。













